最新!济南又有12所学校规划出炉,涉及多个重要片区

时间: 2022-07-27 09:08:32 浏览次数:400

近日

济南市自然资源和规划局

对多所学校规划项目进行了公示

其中包括幼儿园、小学、高中

以及九年一贯制学校、专科学校

涉及七里河西片区、华山、彩石等热门开发片区

一起来看具体规划

↓↓↓

01

泺口片区18班小学

泺口B—1—1地块18班小学项目位于天桥区济泺路以东,标山路以西。

该项目总用地面积2.174公顷,其中一期用地面积2.163公顷,二期用地面积0.011公顷。用地性质为中小学用地(18班小学),地上容积率不大于0.8,地下容积率不大于0.1。

02

崇华路中学

记者从济南市自然资源和规划局了解到,济南高新区崇华路中学项目用地选址意见正在公示。

该项目用地位置位于崇华路西侧、天辰大街北侧,用地性质中小学用地,学校班制为27班,用地面积3.2公顷。

03

莱芜路幼儿园

济南市自然资源和规划局公布了莱芜路幼儿园项目建设用地批前公示。该项目位于济南市槐荫区莱芜路以北、腊山河西路以西、济宁路以东。

项目用地性质为幼托用地,拟用地面积约1.1公顷,用地单位济南市槐荫区教育和体育局。项目规划建设一所设施完善、功能齐全的15班幼儿园,在校生规模为450人,教职工总数75人,共计525人。

项目规划总用地面积11025平方米,总建筑面积7710平方米,地上建筑面积7210平方米,主要包括教学综合楼、换热站、车棚等,地下建筑面积500平方米,主要为设备用房等。项目同时配建室外地面游戏场地、道路、停车及绿化等。

04

滨州路小学

日前,滨州路小学建设工程规划许可正在进行批后公示。

该项目位于济南市槐荫区滨州路西侧、聊城路以北,建设单位为济南市槐荫区教育和体育局。总建筑面积为23210平方米,地上建筑面积19710平方米,该项目包括1栋综合教学楼,1栋广播室与器材室、主席台、室外厕所,2栋门卫,1处自行车棚。

05

历下医养结合中心幼儿园

济南市历下医养结合中心幼儿园建设用地规划许可正在进行批后公示,该项目位于济南市历下区盛福片区奥体西路以东,八涧堡路以西。用地面积约0.45公顷,用地单位为济南市历下区教育和体育局。

06

七里河西片区幼儿园

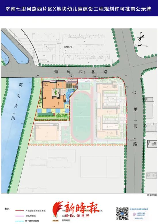
济南市自然资源和规划局网站公布了济南七里河路西片区X地块幼儿园建设工程规划许可批前公示和七里河路西片区X地块小学建设工程规划许可批前公示。根据公示,七里河路西片区将添一所9班的幼儿园和一所18班小学,这填补了区域内教育资源空白,让不少发愁孩子上学的家长眼前一亮。

根据公示,七里河路西片区X地块幼儿园项目位于历城区七里河路以西,窑头大沟以东,建设单位为济南市历城区教育和体育局,项目规划班级为9班。

幼儿园项目建设用地为4292.5平方米,总建筑面积4530.6平方米,地上建筑面积4366.58平方米,地上容积率为1.02,绿地率15.5%,建筑密度为35%,设置机动车停车位7个。记者从招标文件中了解到,该项目计划工期580天。

07

七里河西片区小学

七里河路西片区X地块小学项目和幼儿园项目相邻,规划班级18班。项目占地面积13718.5平方米,规划总建筑面积10408.93平方米,其中地上建筑面积8091.96平方米,地下建筑面积2316.97平方米。

项目主要建设教学综合楼、风雨操场,同步实施室外活动场地、道路、绿化、室外管网等建设。项目建成后可达到18个教学班、师生850人的规模。

08

彩石高中

13日,济南市自然资源和规划局公布了历城区彩石高中项目建设用地规划许可批前公示。

该项目位于虎山路以南、春暄路以西、双彩路以北,用地面积6.95公顷,用地单位为济南历城控股产业投资集团有限公司。

6月,历城区举行彩石高中项目开工奠基仪式,这是历城区全力打造品质历城的民生举措。

据悉,历城区彩石高中项目建筑面积约12万平方米,总投资7.5亿元,主要建设教学楼、办公楼、公寓、食堂、风雨操场和报告厅等设施。

预计2021年8月份完工开学。该项目建成后将有效缓解区域教育资源不均衡的问题。

09

康虹路幼儿园

记者从济南市自然资源和规划局了解到,济南高新区康虹路将新增一幼儿园,规模为9班。该幼儿园位于济南高新区康虹路北侧。

根据公示,该幼儿园用地面积为6588平方米,总建筑面积为4609.35平方米,其中地上建筑面积4006.63平方米,地下面积602.72平方米。该项目绿地率为35%,地上容积率为0.61,地下容积率为0.09。建筑密度为25%,设机动车停车位18辆。

10

济南幼儿师范高等专科学校

学校位于创新谷中部,南至丹桂路,东至海棠路,北至佛山山体,总用地面积为46.99公顷。

学校地上建筑面积189459平米,教学办公区包括图书馆、学术交流培训中心楼、两栋教学及行政办公楼、教学实训综合楼、艺术教学楼和体育馆等。生活区包括综合服务中心楼、学生宿舍、食堂等。学校规划在校生规模8000人。

11

华山片区安置二区九年一贯制学校

学校位于历城区光华大道以南,清水路以北,用地面积约3.69公顷容积率为0.65,用地单位为历城区教育与体育局。

12

海慕法姆药厂地块二-X幼儿园

位于北园大街以南、兴济桥西路以西,拟用地面积约2102平方米,用地单位为槐荫区教育和体育局。

标签: